La courée de la Redonne
Vers 1912-1914, la courée de la Redonne termine au nord le premier îlot du grand lotissement de la Fontaine des Tuiles, commencé au sud en 1908.
Délimité par les rues Mariaud, Emile Rouvière, Redonne, Emile Cavagni, l’îlot s’est constitué en peu d’années, avec une progression chronologique du sud au nord. Ce phénomène s’accompagne d’une autre progression, typologique et sociale, avec au sud les maisons individuelles à jardin de la rue Mariaud, les immeubles à logements bordant les rues Cavagni et Rouvière et enfin la courée à son extrémité nord.
A l’époque de la construction de la courée, un deuxième îlot est en cours de construction à l’ouest, entre les rues Emile Cavagni et Albin Bandini. A l’est, la tuilerie des frères Pierre occupe l’emplacement de l’actuelle Résidence Saumaty. Au nord s’étendent des terrains encore non bâtis, probablement encore en culture, futur lotissement Pasteur-Chieusse.

Vue aérienne du lotissement de la Fontaine des Tuiles.
Les bâtiments de la courée de la Redonne constituent l’extrémité nord-est de l’îlot bordant la rue Emile Rouvière.
La courée de la Redonne est entièrement close de murs : élévations postérieures des logis sur la rue Emile Rouvière et murs pignons aveugles sur la rue de la Redonne. Son portail piéton s’apparente à ceux des maisons individuelles. Vue de la courée Castejon. Le sol de la cour est en fort contrebas de la voie. L’accès par la passerelle au centre n’est pas d’origine.

Courée de la Redonne, 1914.
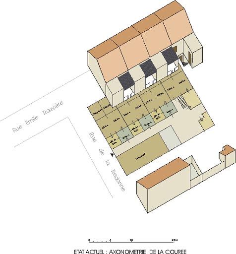
A l’origine, la courée se compose seulement des 4 logements formant l’immeuble en bordure de la rue Emile Rouvière. Au fond de la cour, le lavoir et des latrines sont adossés au mur de clôture.
Chaque logement disposait d’une petite terrasse, délimitée par un mur-bahut, peut-être couverte par un auvent, suivant une disposition qui se trouve encore à la courée Fenouil-Puget. Le cinquième logement, disposé parallèlement au premier ensemble, est probablement de construction légèrement postérieure, peut-être consécutive à une mutation de propriété, et a réduit considérablement l’espace libre de la cour.
D’autres transformations ont réduit la surface des terrasses privatives par des constructions en excroissance volumétrique, occupées par des salles de bains dans les trois premiers logements bordant le côté gauche de la cour.

Vue de la courée avec à droite le cinquième logement de construction postérieure

La courée de la Redonne, vue en enfilade de la cour prise depuis la rue.

Vue générale de la cour depuis le portail d'entrée.

Etat d'origine : axonométrie de la courée.

Etat actuel : axonométrie de la courée.
© Région Sud Provence-Alpes-Côte d'Azur - Inventaire général